
瑗颐湾128㎡ | 把闲情与日光,一同装进亲爱的家!
本期要为大家分享一套128方轻法式中古风的案例。
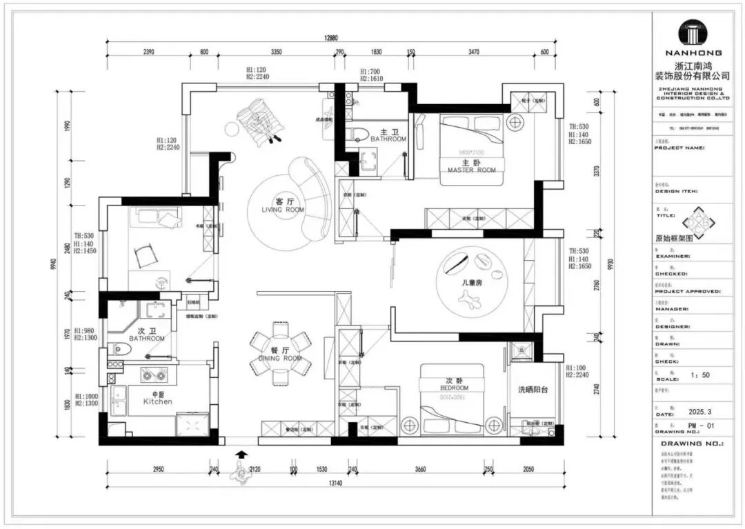
日光轻暖,空间与人共同生长。 本案以乳胶漆、石膏线、木纹砖与花砖为基底,墙顶勾勒出法式的浪漫轮廓,同时保留质朴的自然韵味,营造温柔又自在的氛围。软装融入中古风家具,调和出时光沉淀后的温度。 ▲平面方案 客厅基底温柔浅淡,丰盈光线透过落地窗无拘漫入。顶部加以石膏线修饰,为空间注入了优雅的法式格调。 绒布材质的软装,以柔软的触感,与空间温和的底质互为呼应。中古风矮柜+黑色开放层架,空间在实用主义的从容之外,更内蕴着居者精神所向往的自在及松弛。 餐厅借助中古风的圆桌与吊灯,铺垫出温润又富有时光感的场域基调,搭配造型各异的餐椅,在统一中传递出恰到好处的视觉跃动。 墙面设计洞洞板,为场域增添个性风景的同时,也兼顾到小件收纳的功能性。壁炉更成为餐厅的核心元素,跳动的火光赋予空间极佳的仪式感,搭配自然系挂画,更添几分灵动与浪漫气息。 餐边柜采用分体式设计,中部可作为小电器的操作台以及就近的备餐区,吊柜底部延伸出开放式置物区,嵌入式灯带悄然点亮一方区域,为夜晚烘托出温馨的氛围。 厨房黑色系橱柜搭配金属拉手,碰撞出深邃的复古气息。同时地面铺花砖,通过小清新的花纹来平衡上层空间的厚重感,避免陷入沉闷。 公区域通铺的木纹砖使视觉有很好的延伸,又兼顾了实用与自然感。圆拱形门洞柔和过渡空间,客餐之间的矮墙隔断施以木皮包边并增添阅读书架,勾勒一幕日剧般的闲适场景。 卧室床尾整面的衣柜,为空间塑造有力的功能支撑。法式线条于背景墙上游走,勾勒精致立体感。飘窗成为房间内一处可坐可卧的休闲角落,柜面设计了书架,让杂志、书籍的随手取放更加方便。 书房布局实用,质朴木元素沉淀静心感,百叶窗更成为光影绝妙的画笔。有关知识、梦想与自我的故事,便在此安静展开,日复一日。 主卫选用胡桃木台盆柜,温润木材与精细骨骼线,共同谱写沉稳有序的节奏。墙地浅色系瓷砖带来明亮视感,马桶区背景墙还铺设了小清新花砖,营造局部的亮点。 次卫采用浅草绿为空间基调,力陈清新自然氛围。墙面运用花砖与纯色瓷砖的上下组合,增添层次感。来自台盆、五金件的黑色元素则巧妙平衡了浅绿的轻盈,让质感更为细腻。 项目信息 项目名称:瑗颐湾 设计风格:轻法式中古 项目类型:四室两厅 项目地点:中国·杭州 项目面积:128㎡ 项目服务:设计·施工·硬装·软装 全案设计 设计单位:浙江南鸿装饰 施工单位:浙江南鸿装饰



















免费
免费申请户型规划
专属设计师免费1对1全程服务
已经有3792人申请
24小时免费咨询电话
400-8800-618
你家预算
108080元