
东宝翠轩92㎡ | 在简与醇之间,安放生活
本期要为大家分享一套92方现代中古风的案例。
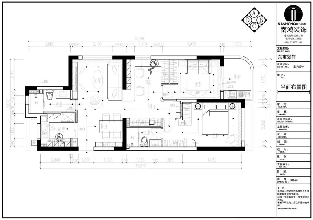
整体选用浅白、奶油色搭配,轻缓的色系将空间感尽可能放大。书房设计与客厅连通,这也令公共区域更加流畅通透,视野不受拘束。 沉稳浓郁的深色胡桃木点缀空间,亦增添了许多中古的醇厚质感。 ▲平面方案 客厅与书房贯通之后,视野与光线自在敞开,加上整体浅淡柔和的硬装基础,让家的氛围更显舒缓放松。 无主灯的顶面不压抑层高,电视背景墙在实现大量收纳功能的同时,兼顾了造型的简约与美观。 家中各处以干净利落的线条勾勒,营造明亮整洁的生活环境。隐形门融入墙面,提升客厅立面的一体性与完整度,空间更显从容。 餐厅动线靠近厨房,餐桌靠墙摆放,为另一侧留出宽敞的走道空间,整体木质材料营造沉静氛围。餐边柜搭配可移动插座,为小电器的使用提供日常便利。 书房全然打开,并沿与客厅的隔墙延伸出书桌,搭配一组玻璃门板吊柜,构成简洁而功能完备的阅读办公区。临窗处卡座与储物格一体成型,既收纳杂物,又能容纳闲适时光。 圆弧门洞让区域过渡变得更为柔和,过道空间也并不浪费,而是将储物与展示融合一体,陈列主人收藏的潮玩手办,家因此有了生动而鲜活的气息。 视线向上,圆拱造型从门洞延伸至顶部,形成连贯的视觉语言,勾勒出优雅轮廓的同时,还巧妙隐藏了空调风口,将功能化作整体设计感的一部分。 主卧是专属居者的一方私属领域,色系在垂直维度上形成轻柔对话,上半部分的浅白为空间留足呼吸感,下半部分的沉稳木色则将视觉沉淀,让氛围落于踏实的安稳。 次卧作为家中一处方便观影的休闲区,一张柔软的双人沙发,搭配木质边几,便足以构建出舒缓悠然的精神栖息地。 卫浴空间的线条同样简约流畅,不带来任何视觉上的干扰,一切都可依循自己的节奏有条不紊展开,稳步开启一天生活。 项目信息 项目名称:东宝翠轩 设计风格:现代中古 项目类型:三室两厅 项目地点:中国·杭州 项目面积:92㎡ 项目服务:设计·施工·硬装·软装 全案设计 设计团队:杭州南鸿装饰 张涛 设计单位:浙江南鸿装饰 施工单位:浙江南鸿装饰













免费
免费申请户型规划
专属设计师免费1对1全程服务
已经有3792人申请
24小时免费咨询电话
400-8800-618
你家预算
108080元