
100㎡会呼吸的家:法式浪漫邂逅自然主义!
应主人对浪漫与生活的仪式感的期许,本案以中古风作为此次精装改造的主调,融入柔美的法式,依靠层次丰富的软装元素,展现温馨、鲜活的家屋图景。米白与棕咖系的色彩组合,赋予空间宁静又安稳的质感。简约与复古间的恰当平衡,让居室不仅服务于生活,更承载情感与审美。



Hallway
玄关


本案入户为横向的一字型走道,视觉向两侧自然延展。


设置白色与木色组合的玄关柜,温润有序,宝格丽奢石的穿插,营造美丽视觉落点。墙面涂抹肌理感艺术漆,辅以石膏线与法式雕花线条,搭配斗柜、灯饰、绿植等软装元素,细腻地展现出浓郁生活气息。
Living Room
客厅

开放式的格局最大限度将自然光引入室内,构建出一个适宜互动交流的场域。阳光自由洒落,时光的步调随之变缓,而那些认真生活的日子,也将变得更加可知、可感。

电视背景墙通过留白造型与横纵双向延展的奢石,得到轻盈又利落地展现。鱼缸落在过道中间,成为无形的区域分界。

一组深色直排沙发,气质沉敛,锚定重心。阳台一侧墙面嵌入玻璃展陈柜,收纳各类手办,成为个性的趣味流露。

主卧房门采用了石膏线装饰的隐形门设计,门体与墙面浑然一体,视觉得到自然延展,背景墙因此更显完整统一,空间呈现出利落井然的秩序感。

阳台兼顾生活与休闲双重功能,一侧置入洗衣、烘干机,镜面柜门无形放大空间,另一侧拱形壁龛搭配小壁炉,增添艺术气息与法式浪漫。同时,因此处光线最佳,遂特意留出绿植景观区,酝酿出鲜活生机。
Dining Room
餐厅

客餐一体布局搭配圆桌设计,节省了大量的空间。墙面嵌入深玻材质酒柜,增加色彩层次;冰箱外移,日常动线利落,厨房内部也多了从容余裕。

家具选配棕咖色系的餐桌椅与侘寂风南瓜灯,让空间氛围变得沉稳又有韵味。开放式格局将光线自由铺开,心境也能随之舒展明朗。


设计师将业主需求的吧台设置于飘窗区,通过柜子加高、边框包覆的手法,构筑出一方兼具仪式感与功能性的角落。墙面嵌入移动式插座,方便日常沏茶、煮咖啡,台面下的收纳空间,让茶器杯盏、咖啡豆、茶叶等皆可就近取放。
Kitchen
厨房

厨房定制白色与蒂芙尼蓝搭配的橱柜,清新明快,兼具时尚感与活力。
Bedroom
卧室

主卧地面铺设深色拼花地板,以交错的纹样,演绎出独特表情。



背景墙结合护墙板与花艺墙布,满溢春天般的暖融气息。室内走廊设置挂墙收纳,借日常小物品、摆件的陈列,自然丰富空间的层次感和生活感。


次卧以高级灰为主调,墙面预留专属区域收纳主人的吉他,柜体圆润的开口转角,提升空间结构的流畅感。
Bathroom
卫生间

位于过道的公卫干区,采用半高墙与木藤编屏风相结合的隔断,与墙壁自然主题的花砖相映成趣,搭建出一方富有自然野趣的意境空间。
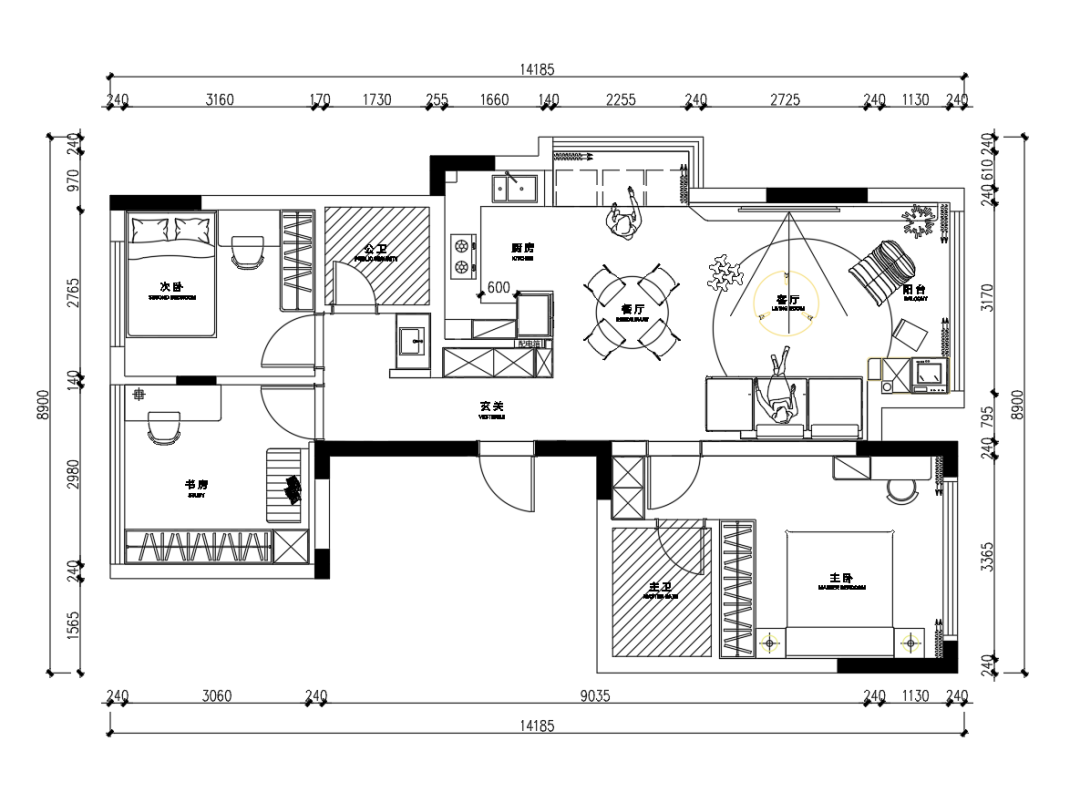
项目信息
项目名称:芳菲之城
设计风格:中古法式
项目类型:三室两厅
项目地点:中国 · 杭州
项目面积:100㎡
套餐类型:精装房改造
项目服务:设计·施工·硬装·软装 全案设计
设计团队:杭州南鸿装饰 高远
设计单位:浙江南鸿装饰
施工单位:浙江南鸿装饰
上一篇:乳胶漆/墙布/石膏线/挂画...低预算如何打造高级感背景墙?
已经是最后一篇了
免费
免费申请户型规划
专属设计师免费1对1全程服务
已经有3797人申请
24小时免费咨询电话
400-8800-618
你家预算
108080元