
168㎡现代中古:学会这招「虚实手法」,你的新家也能如此明亮有格调!

期要为大家分享一套168方现代中古风的案例。
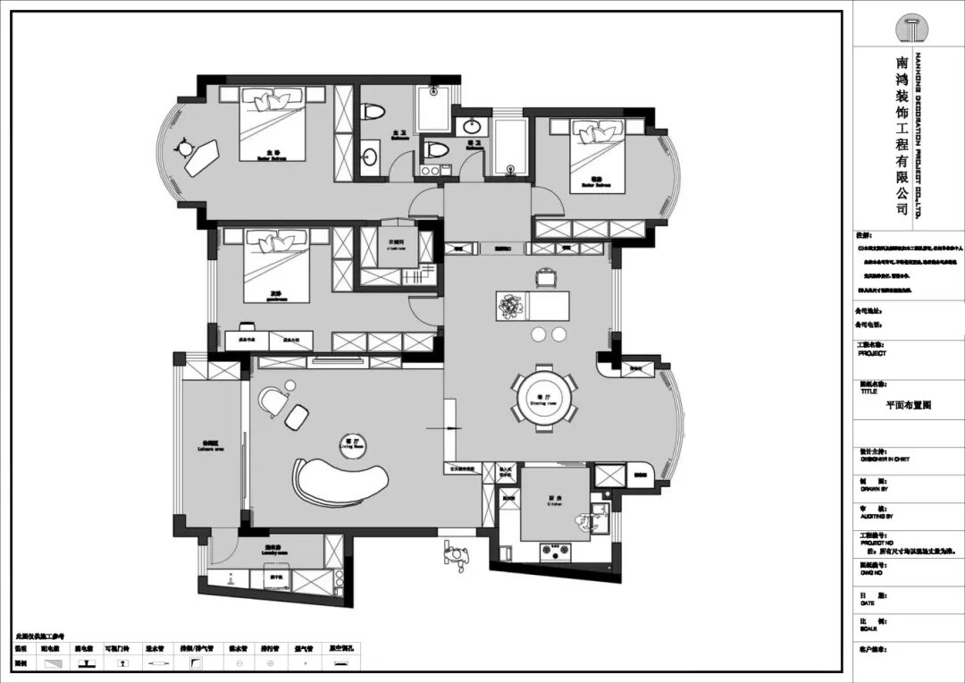
本案是为一对夫妇规划的退休居所,室内布局依其生活习惯量身打造,动静有序、分区明晰。公共区域力求开阔,可以承载会客、用餐、品茗、阅读等不同场景,舒展自如亦贴合日常。 色彩上则以纯净的白色作简明基底,搭配红棕色胡桃木木作,形成层次分明的节奏,同时加入圆弧语汇与斯卡帕的叠级线条,于沉静氛围中暗藏韵律,为生活注入更多艺术格调。 ▲平面方案 玄关处,设计师巧用虚实手法,于入户正对的墙面点缀端景,营造艺术气氛。一侧做悬空的玄关柜,佐入灯带灯光,轻盈接住夜归的脚步。 斯卡帕叠级造型搭配花器陈设,光影交错间,形成动静相宜的视觉韵律,玄关也自然地成为家的序章,让情绪过渡极为流畅。 客厅的基调明亮而洗练,素雅墙面与无主灯顶面落实简约设计理念,家具就是一个个视觉落点,为空间编排好了恰当的层次与流动的节奏。 电视背景墙以屏幕为视觉中心,向四周展开收纳布局,令储物与展示并进。木作柜泛起温润肌理,沉静自在的叙事方式,悄然唤起居者与居室之间的情感共鸣。 黑色皮艺沙发低调稳重,两侧搭配落地灯与收纳架,清晰的线条与高级的质感,共同为空间注入中古时尚氛围。 错层的高度差,使得客厅与餐厨之间,无须任何隔断,就有了明确的区域划分。两层台阶铺陈灰色大理石,以沉静的质感与优雅的格调,实现场景的自然转换。 餐厅以圆为引,利用圆形造型向上延展空间,垂落的一盏中古风蚕丝吊灯,如月华初泻,为空间覆上一层朦胧滤镜。搭配圆桌餐椅,进一步导向围坐的亲密感。 餐厅与厨房之间加入移门,同时外置部分电器,有效释放厨房的操作压力,同时兼顾日常使用的便捷与高效。无论是简餐快煮,还是家宴款待,空间始终维持着从容不迫的节奏。 品茗区与餐厅融合,视野开阔,思维也随之舒展。背景墙嵌入书柜,茶香氤氲间,捧书细读或与友促膝而谈,生活的诗意便在这方寸天地中自在流动。 厨房延续外部的色彩基调,明亮中包含温柔的情绪。高柜融合嵌入式电器,统一橱柜立面带来干净利落的感受,也让下厨时光始终保持着悠然与愉悦。 动静分界的门洞使用木皮包裹,塑造出清晰、坚实的轮廓,整体拱形造型,强化了空间的结构感以及入内的仪式氛围。 主卧室使用了低彩度的半面壁纸,赋予空间沉静又不失丰富的表情。衣柜嵌入藤编柜门与开放格的形式,在统一体块中引入虚实变化,为空间注入更多自然活力。床尾搭配的是一组线条利落的实木梳妆桌,细微处展露对材质与比例的精心考量。 P.I. 项目信息 项目名称:新明半岛 设计风格:现代中古 项目类型:三室两厅 项目地点:中国·杭州 项目面积:168㎡ 项目服务:设计·施工·硬装·软装 全案设计 设计单位:浙江南鸿装饰 施工单位:浙江南鸿装饰




















免费
免费申请户型规划
专属设计师免费1对1全程服务
已经有3792人申请
24小时免费咨询电话
400-8800-618
你家预算
108080元