
柳岸晓风212㎡ | 推窗即江,入目皆景,简奢质感更是拉满!
本案以简奢二象为主题概念,藏奢于简,简奢共生。空间以干净的线条与中性的色调铺陈基调,融入金属、石材等轻奢材质,塑造出兼具宁静感受与艺术氛围的时尚都市居所。


阳光漫过江面,碎成一片流动的金;光线探入室内,投下家具器皿的倒影。此刻,空间与自然达成默契的共感,一举一动,已然成为品质生活安静而确切的表达。

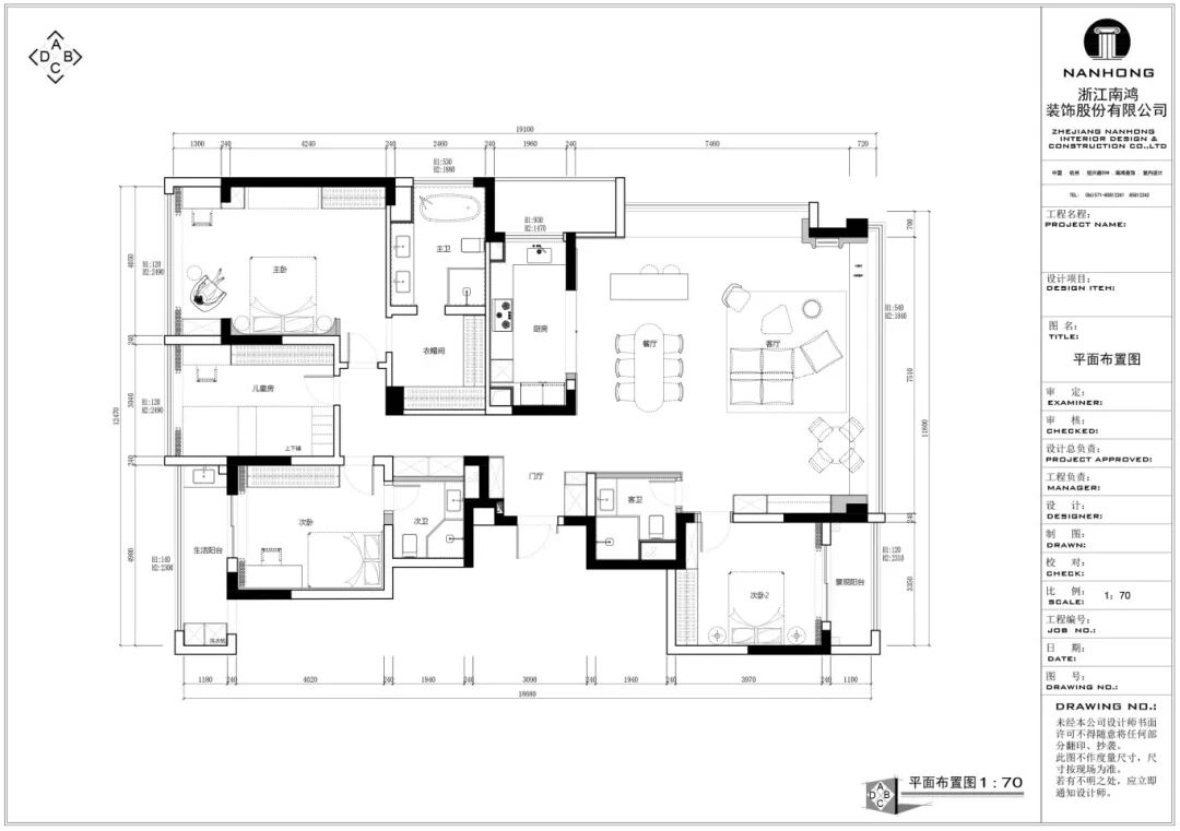
平面方案
▊ CASE APPRECIATION
L.R. 客厅


杏白色基底与窗外江景,共同构筑起这套大平层的视觉基础。开放式布局让视野无界延伸,软装质感的碰撞营造艺术张力,居室在低调中饱含着丰富的层次。

白色岛屿沙发成为区域中的核心枢纽,可移动式落地电视亦能随情境转向,会客时轻盈隐入角落,让位给更宽阔的视野。
不必刻意去适应布局,而是让空间灵活响应每个生活场景,这种流动性与自由度,正是来自设计对现代人居本质的深切思考。

窗边架设休闲桌椅,与水吧台相邻而置,想象着:当晨光初现,煮一杯浓香咖啡,倚坐窗边,静待美妙新一天的开启...


光与景,成为空间内无声却也是最精彩的语言。夜幕降临时分,对岸万家灯火浮动,霓虹与远山的轮廓,旋即交织出最动人的景色。
D.R. 餐厅


餐厅选配造型优雅的吊灯与餐桌椅,搭配岛台,串联起流畅的洄游动线。材质与色彩对话,酝酿出高级的情调,为一席席盛筵做好了最充足的准备。

奢阔大理石岛台,内置可调节的发光系统,灯光自由变幻间,天然石纹路随之流转,明暗交错,勾勒出一幕华丽视象。
H.R. 过道

设计继续循着灯光的轨迹,在空间内植入恰到好处的软饰点缀,搭建起丰富的立体层次。这不仅是美的呈现,更是一种对都市生活的精准解读:让仪式外显,让每一次经过,都成为精心编排过的独特体验。
M.R. 主卧


主卧的氛围轻巧中见典雅,床头拥有曲面的包裹,细腻的织物、明亮的光感,平凡的日子便在这样的环境中,悄然滋养出柔情与浪漫。

极简的轮廓释放松弛、宁静的感受,轻与重的色彩比例完美协调,均衡地铺展出向内生长的生活能量。
C.R. 儿童房


儿童房以优雅而不失活力的紫色作为主调,既温柔又富有想象力。墙面铺设柔软绷布,触感温润,防磕碰的同时,增添了一份更加细腻的居住体验。

这间儿卧则贴合了孩童爱玩耍的天性,以上下床的形式,融合玩乐区与睡眠区,供孩子自由游戏与探索。空间内部有序分布不同功能,为孩子的成长预留好了足够的弹性。
P.I. 项目信息 项目名称:柳岸晓风 设计风格:现代极简 项目类型:大平层 项目地点:中国·杭州 项目面积:212㎡ 项目服务:设计·施工·硬装·软装 全案设计 设计单位:浙江南鸿装饰 施工单位:浙江南鸿装饰
免费
免费申请户型规划
专属设计师免费1对1全程服务
已经有3792人申请
24小时免费咨询电话
400-8800-618
你家预算
108080元