
107㎡意式轻奢:于沉静中,唤醒品质生活的仪式感
本期要为大家分享一套107方意式轻奢风的案例。
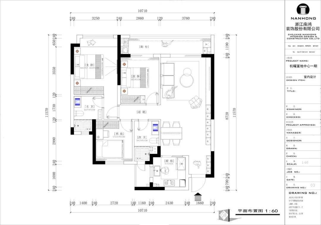
本案是一套精装房的改造项目,业主钟情高级感的灰黑系,希望新家经重新设计之后,能够拥有更加沉稳大气的格调与突出的品质感。 设计师以温润木色打底,融入线条精练、造型优雅的意式深色家具,令居室兼得理性秩序与感性温度,也为业主营造出一处安稳惬意的栖心之所。 ▲平面方案 精准意式笔法,在原有的精装架构中,成功搭建起全新的空间层次和视觉秩序。设计师通过对结构、材质与光线的调控,为这间居所赋予了沉稳的叙事节奏,生活由此展开广阔的想象。 方正客厅以木色铺底,笔直的线条勾勒外型,加之不同家具质地的碰撞,由此浮现稳健而不失温度的空间感。光线漫溢,居所达成实用与美学的平衡,也成为主人生活品味的一种无声表达。 低敛的灰黑色系是空间的主旋律,在视觉上抹除情绪的干扰,让感官回归至沉静。 通透的流动感格局中,客厅与餐厨区域形成柔性边界,保持功能独立的同时延续着视觉张力。餐桌椅靠墙安放,留出从容动线;直线型吊灯悬垂而下,呈现出宁静宽和的意蕴。 餐厨相邻,让烹饪、上菜的动线高效而便捷,玻璃移门的隔断方式,既能保持视觉的连贯,又能依使用情景灵活开合。三餐的烟火气,自然融入到家人相处的每一刻时光。 设计没有做任何刻意的装饰,只是透过材质、比例与光影的细致协作,让空间久久相伴一种低调的稳雅。 飘窗在床尾延伸出梳妆台区,立面使用深色玻璃柜,兼顾通透感与防尘性能,内置分层系统,让各类化妆品、护肤品各安其位。 卫浴空间以柔灰系的瓷砖打造主基调,整体氛围力求简约舒适。镜柜收拢日常洗漱用品,让台面时刻保持清爽整洁。 P.I. 项目信息 项目名称:杭曜置地中心 设计风格:意式轻奢 项目类型:三室两厅 项目地点:中国·杭州 项目面积:107㎡ 项目服务:设计·施工·硬装·软装 全案设计 设计单位:浙江南鸿装饰 施工单位:浙江南鸿装饰











免费
免费申请户型规划
专属设计师免费1对1全程服务
已经有3792人申请
24小时免费咨询电话
400-8800-618
你家预算
108080元