
140㎡意式轻奢:理想都会生活范本,以造型与结构书写的灵动高级感!

本期要为大家分享一套140方意式轻奢风的案例。
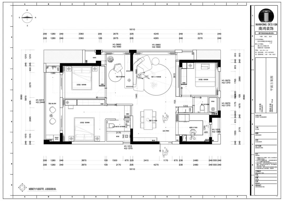
意式轻奢主义的家,于简约与丰盛间找到平衡,完美诠释居者心境。 本案在造型的雕琢、材质的选择与细节的处理上尤为考究,旨在将材质本身的肌理与结构的艺术表达,作为空间张力的核心来源。 客厅、餐厅与书房在内的公区域,也是本案的视觉聚焦中心,整合而流通的布局既延展了视野广度,又充分包容生活的多种可能,引导一种不被约束的自在节奏。 ▲平面方案 客厅顶部做极简的无主灯设计,让光线均匀洒落,地面则通铺深灰色柔光砖,为空间定下静谧基调。从上而下的视觉游移,天与地形成鲜明对比,家具则成为二者间的自然过渡,通过细节的层层叠加,赋予客厅温度与深度。 大理石在素色空间中,总能以最纯粹的语义书写奢华。电视背景墙通过色块叠搭、线条分割、体块切割与嵌入等多元设计手法,构建出丰富且具备极强艺术感的层次,在光线下流转出生动的质感变化。 米咖拼色的意式沙发,搭配大理石茶几,利落而规整的线条,勾勒出秩序与张力。材质的肌理,于无声处释放细腻质感。 而真正点睛的一笔,还要落在与书房交界处的那道优雅拱形结构,它不仅柔化了空间的过渡,更以建筑式的语言,将日常起居升华为一种超凡存在。 餐厅空间有着同样精细的结构雕琢与软装选品,家人的日常就餐、朋友的欢快畅谈,都找到了最恰如其分的场所。 利落线条勾勒餐边柜与背景墙的轮廓,斯卡帕叠级造型则与客厅设计轻巧呼应。天然木材的温润性,搭配流动感的空间布局,让家的每个角落都焕发出活力和生机。 书房也是整块公区域所浓墨重彩的描绘中心,它以一道拱形结构作为基础,悬挑式书桌穿插其中,轻盈的形态减少体量感,温润与冷冽的调和,勾勒一方适合专注的办公、阅读场域。 体块的分割在这间居室中随处可见。顶部斜面设计,继续加深建筑的结构力度,凸显几何之美。隐形光源暗中辅助,柔和晕染,烘托惬意的氛围。 开放式的书房与客厅、餐厅不同区域产生视觉联动,悄然延展了空间尺度。一隅角落,自成天地,却未隔绝家人间的情感交流,这也是主人所向往的居住模式。 极简黑白调,延续着安稳平静的空间情绪。电器设备与储物空间高效整合,打造干净利落的视觉体验。而独立的中厨模式,则最大程度避免了烹炒时的油烟散溢问题。 卧室揉入优雅低调的黑,同时在墙面延续了丰富的造型语言。现代主义家具摈弃繁复,却在内敛中透出不凡品味。这方安睡的空间正像是居住者个性的延伸,自在生长,不疾不徐。 宽长的生活阳台,与主次卧相连,洗衣烘干设备与水池区分置两端,从洗衣、晾晒到收纳,整条家务动线便捷而高效。 P.I. 项目信息 项目名称:飞虹华庭 设计风格:意式轻奢 项目类型:三室两厅 项目地点:中国·杭州 项目面积:140㎡ 项目服务:设计·施工·硬装·软装 全案设计 设计单位:浙江南鸿装饰 施工单位:浙江南鸿装饰

















已经是最后一篇了
免费
免费申请户型规划
专属设计师免费1对1全程服务
已经有3773人申请
24小时免费咨询电话
400-8800-618
你家预算
108080元